Ημιτελής μεζονέτα στην περιοχή του ΚΕΓΕ

Περιγραφή Ακινήτου
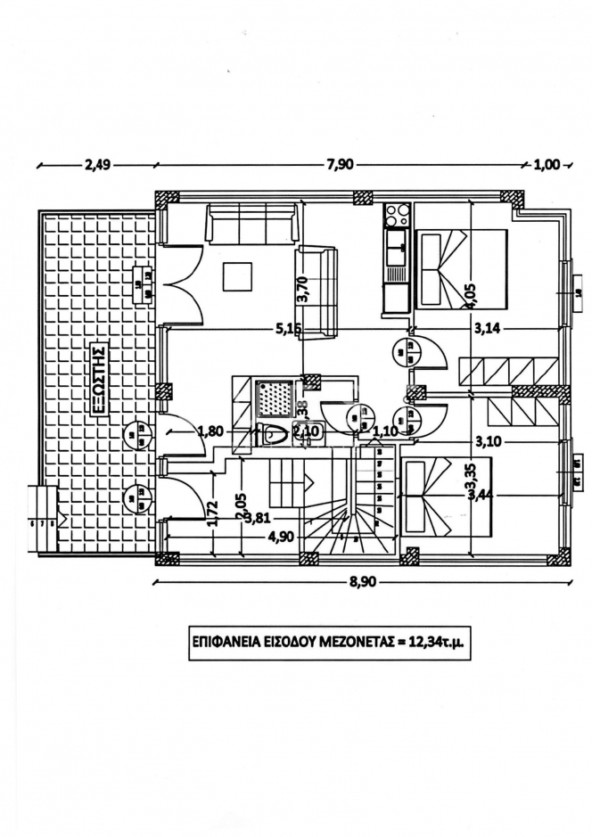
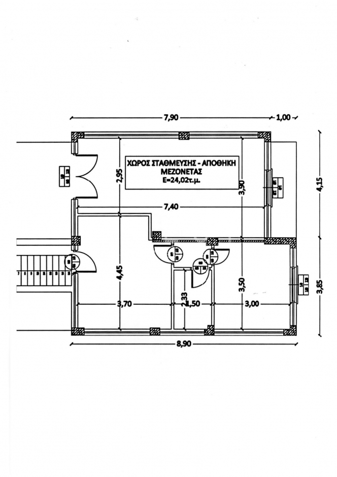
Κωδικός ακινήτου: 11377 - Αλεξανδρούπολη ΚΕΓΕ ΠΩΛΕΙΤΑΙ μεζονέτα 2 επιπέδων συνολικής επιφάνειας 135 τ.μ. σε οικόπεδο 100 τ.μ. . Αποτελείται από 3 υπνοδωμάτια, σαλοκουζίνα, μπάνιο και WC. Είναι κατασκευασμένη το 2010 με ενεργειακή κλάση Ε και διαθέτει θέα σε ανοιχτό ορίζοντα, πάρκινγκ, μπαλκόνια 20 τ.μ. - Τιμή: 175.000 € Πωλείται ημιτελής ανεξάρτητη μεζονέτα στην περιοχή του ΚΕΓΕ στην Αλεξανδρούπολη. Έχει ξεχωριστή είσοδο επιφάνειας 12,34 τ.μ. και αποτελείται από 65 τ.μ. Ά Ορόφου ,34,26 τ,μ, ΄Β Ορόφου και 24,02 τ.μ. χώρο γκαράζ .Πρόκειται για μία μεζονέτα κατασκευασμένη το 2010, με μεγάλα μπαλκόνια και σε σημείο με ανοιχτωσιά<br> Ιδανικό για ιδιοκατοίκηση ή επένδυση.
Ημερομηνία Τροποποίησης
17-09-2025
Επίπεδα
2
100τ.μ.
3
1
Μπάνιο
1
WC
1
20τ.μ.
Πισίνα
Δεν διαθέτει
Όροφος
1 ος
Θέρμανση
Απροσδιόριστο
Κατάσταση
Ημιτελές
Χωροθέτηση
Διαμπερές - Προσόψεως
Προσανατολισμός
Νοτιοανατολικός
Θέα
Ανοιχτός ορίζοντας
Έτος κατασκευής
2010
Έτος ανακαίνισης
0
Κουφώματα
Απροσδιόριστο
Πάτωμα
Απροσδιόριστο
Χώρος στάθμευσης
Υπόγειο
0€
Ενεργειακή κλάση
Ε
0μ.
0μ.
0μ.
0μ.
Συγκοινωνία
Αστικό Λεωφορείο

Διαχειριστής Ακινήτου

Ενδιαφέρομαι

CAPTCHA
This question is for testing whether or not you are a human visitor and to prevent automated spam submissions.

Συνεργαστείτε μαζί μας!

Βρείτε το ακίνητο που ψάχνετε ή αναθέστε μας το ακίνητό σας.

Συνεργάτες και πελάτες μας

προτιμούμε τους καλύτερους γιατί μας εμπιστεύονται οι καλύτεροι.

Σχετικά με εμάς

Η Quest real estate έχει έδρα την Αλεξανδρούπολη και ειδικεύεται στην παροχή διαμεσολάβησης για την αγοραπωλησία ή μίσθωση ακινήτων στην περιοχή της Θράκης και ειδικότερα στο Ν. Έβρου.

Επικοινωνείστε μαζί μας

Ελευθερίου Βενιζέλου 40, Αλεξανδρουπολη 68100

Συνδεθείτε μαζί μας